《
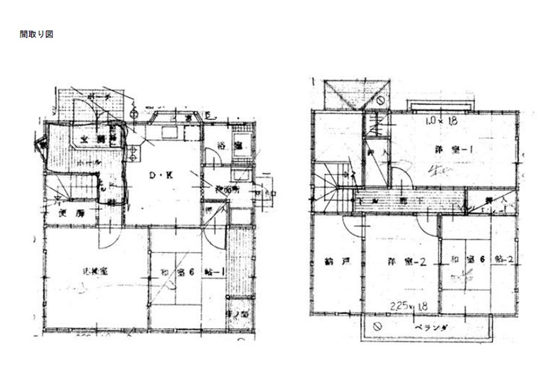
間取り図
》